A Warm and Welcoming Colonial with Timeless Charm
1805 Roxboro PlCrofton, Maryland 21114
Overview
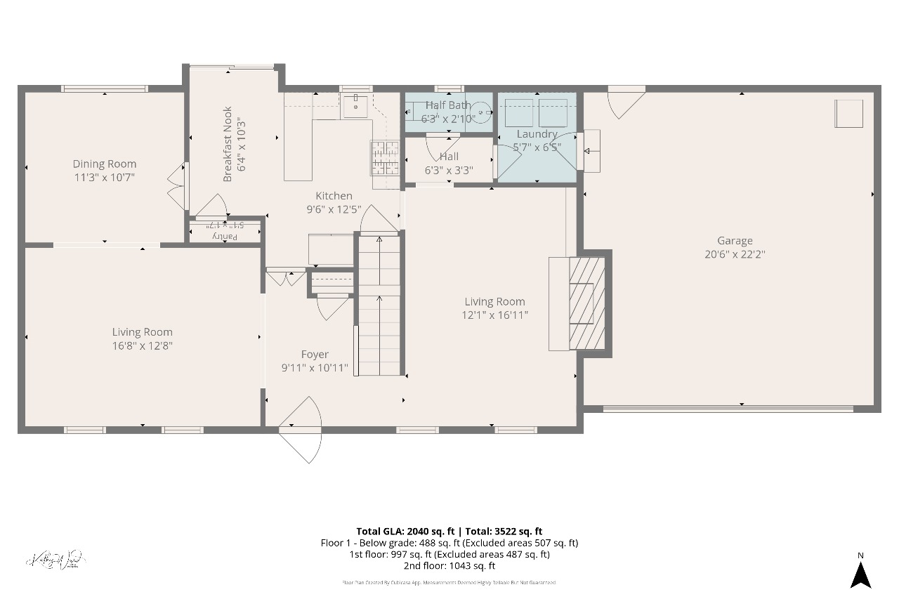
This well loved Colonial has the kind of presence that instantly feels like home. Built in 1973 and thoughtfully cared for over the years, it offers four generously sized bedrooms and two and a half bathrooms, with a layout designed for everyday living and lasting memories. The kitchen features granite countertops, stainless steel appliances, and a warm, welcoming feel that flows easily into the main living spaces. Updated bathrooms with crisp white cabinetry add a fresh touch while still honoring the home’s original character.
The main level includes a dedicated laundry room for everyday convenience. Downstairs, the finished lower level recreation room provides flexible space for movie nights, hobbies, or game day gatherings. The expansive unfinished area offers abundant storage, a utility sink, and houses the heating system and hot water heater. Outside, mature trees frame the home beautifully, adding to the sense of comfort and longevity that only time can create. Ideally located near Crofton Country Club, with convenient access to shopping, restaurants, and everyday amenities along Route 3, this is a home that has been truly enjoyed and is ready for its next chapter.
The main level includes a dedicated laundry room for everyday convenience. Downstairs, the finished lower level recreation room provides flexible space for movie nights, hobbies, or game day gatherings. The expansive unfinished area offers abundant storage, a utility sink, and houses the heating system and hot water heater. Outside, mature trees frame the home beautifully, adding to the sense of comfort and longevity that only time can create. Ideally located near Crofton Country Club, with convenient access to shopping, restaurants, and everyday amenities along Route 3, this is a home that has been truly enjoyed and is ready for its next chapter.